(请先阅读“全国老员工数学建模竞赛论文格式规范”)
C题输油管的布置
某油田计划在铁路线一侧建造两家炼油厂,同时在铁路线上增建一个车站,用来运送成品油。由于这种模式具有一定的普遍性,油田设计院希望建立管线建设费用最省的一般数学模型与方法。
1.针对两炼油厂到铁路线距离和两炼油厂间距离的各种不同情形,提出你的设计方案。在方案设计时,若有共用管线,应考虑共用管线费用与非共用管线费用相同或不同的情形。
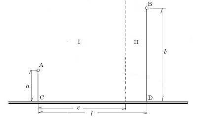
2.设计院目前需对一更为复杂的情形进行具体的设计。两炼油厂的具体位置由附图所示,其中A厂位于郊区(图中的I区域),B厂位于城区(图中的II区域),两个区域的分界线用图中的虚线表示。图中各字母表示的距离(单位:千米)分别为a= 5,b= 8,c= 15,l= 20。

若所有管线的铺设费用均为每千米7.2万元。铺设在城区的管线还需增加拆迁和工程补偿等附加费用,为对此项附加费用进行估计,聘请三家工程咨询公司(其中公司一具有甲级资质,公司二和公司三具有乙级资质)进行了估算。估算结果如下表所示:
| 工程咨询公司 |
公司一 |
公司二 |
公司三 |
| 附加费用(万元/千米) |
21 |
24 |
20 |
请为设计院给出管线布置方案及相应的费用。
3.在该实际问题中,为进一步节省费用,可以根据炼油厂的生产能力,选用相适应的油管。这时的管线铺设费用将分别降为输送A厂成品油的每千米5.6万元,输送B厂成品油的每千米6.0万元,共用管线费用为每千米7.2万元,拆迁等附加费用同上。请给出管线最佳布置方案及相应的费用。